Budapest, XIII. Bessenyei utca Ref. No.: 130655
€405,500
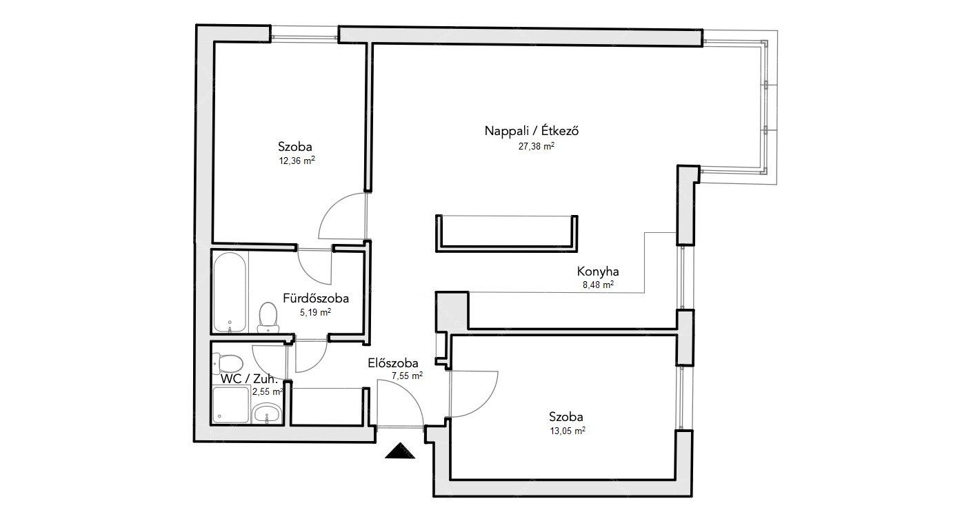
For sale in the 13th district, Bessenyei Street (Cezar House), an excellent condition, 77 m², 2nd-floor, 3-room, air-conditioned apartment.
The condominium features 24-hour concierge service and a closed-circuit video surveillance system providing enhanced security, while a well-maintained private ornamental garden contributes to the peaceful atmosphere.
The property consists of: an entrance hall; a fully fitted kitchen (with ceramic hob, electric oven, extractor fan, refrigerator, and dishwasher); a spacious living room with dining area; two bedrooms; one bathroom with a bath and another with a shower.
The sophisticated apartment is characterized by borovi pine windows, quality built-in furnitures, tiles, and sanitary fittings; shading is provided by thermally insulated electric shutters.
Public transportation in the area is excellent, the M3 metro station just a few minutes' walk away. Nearby, you will find a kindergarten, school, various shopping options (Lehel Market, Spar, Lidl), a medical clinic, and a pharmacy.
The apartment includes an easily accessible parking space in the condominium’s underground garage – located close to the staircase and elevator – which is available for optional purchase.
The price is 14 million HUF.
The display is flexible, so feel free to call us!
- District: 13.
- Floor: 2
- Size: 77 sqm
- Beds: 2
- View: Street
- Furnished: -
- Garage: No
- Cable TV: -
- Internet: -
- A/C: Yes

